Karol pisze:...
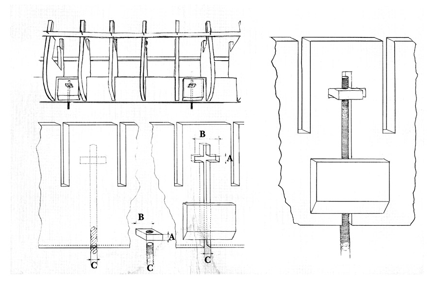
Niestety nie montowałem nakrętek w podłużnicy na etapie montażu owrężenia, więc teraz przy prawie ukończonym modelu będę musiał wywiercić otwory w kilu
...
Nie montowałem, nie dlatego żem taki leń, tylko dlatego, że sposób montażu nakrętek w podłużnicy, był mi w tamtym czasie (to już 10 lat
http://www.koga.net.pl/grupy/viewdiscus ... groupid=10
Co prawda w Sots porada sobie, a kolekcja sobie
Wczoraj zassałem schematy montażu nakrętek na etapie owrężenia, więc dorzucę, może się komuś przyda, bo to trzeba wiedzieć przed przystąpieniem do budowy modelu, a nie po



