Bardzo ładnie ci to Romku wychodzi:) jestem pełen podziwu:)
Dzięki.
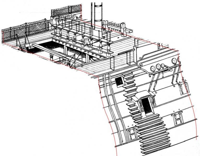
Po skończeniu prototypu postaram się zrobić dokładne plany budowy
i umieścić całość na Forum.
maciejza napisał:
RomekS napisał:Jestem praktykiem i teoria mnie po prostu wnerwia
.
jak brak żubra wpływa na czlowieka ... to sie w głowie nie miesci ;)
Nie bardzo rozumiem sensu wypowiedzi.
A co do teorii...
Teoretycznie to mógłbym zbudować "se" Boeninga i za tydzień "se" wylecieć,
a praktycznie to mam bilet na 737, bo jestem praktykiem.
Dobrze jest latać praktycznie....
a nie w przestworzach ... wyobraźni.
W budowie modeli też jest chyba podobnie.
Relacje na razie praktycznie zawieszam.



