Witam wszystkich,
Ma Andrzej1 swój "Orkan zazdrości", a ja będę miał "Trawler rozpaczy". Rozpaczy z tego względu, iż jest to moje trzecie podejście do modelowania.
Kadłub zakupiłem w znanej wszystkim firmie i jestem z niego zadowolony. Żadnych niedoróbek, wgłębień itp. Wymiarowo zgadza się z tym co mam na dołączonych do kadłuba planów. Zewnętrzna powierzchnia nie wymaga żadnej pracy. Szpachlować trzeba będzie wewnętrzną stronę nadburci.
Trawler w realu wygląda tak:
a tak wygląda surowy kadłub:
Plany jakie dostałem są w formie cyfrowej (DWG), otwierane przez AutoCad, więc wszystko można pomierzyć, a wyglądają tak:
Generalka (fragment)
Konstrukcja sterówki (też fragment)
Wszystko jest rysowane w warstwach, które można wygaszać, w zależności od potrzeb.
Co do innych opracowań, to jest z tym kłopot. Jednostka jest nowa, (powstała w drugiej dekadzie tego stulecia) i w związku z tym brak opracowań tego typu, jakie dostępne są np. dla "Strażaka" którego buduje Rysiu, czy innych jednostek budowanych przez modelarzy. W necie również jest niewiele zdjęć tego trawlera.
Budowę mam zamiar zacząć od wzmocnienia kadłuba wręgami i położenia pokładów.
Jeżeli się mylę to proszę o naprowadzenie na właściwy tor.
Model nie będzie pływający. Sukcesem będzie jeżeli wykonam go w miarę poprawnie.
Jeszcze kilka fotek tej jednostki:
Trawler rozpaczy, czyli Piraja w skali 1:50
- Bogdan59
- Posty: 0
- Rejestracja: 20 lip 2014, 20:25
Trawler rozpaczy, czyli Piraja w skali 1:50
Pozdrawiam Wszystkich
Bogdan
Bogdan
- Borek
- Posty: 379
- Rejestracja: 04 gru 2010, 21:56
- Lokalizacja: {"name":"Polska Wroc\u0142aw","desc":"","lat":"","lng":""}
Re: Trawler rozpaczy, czyli Piraja w skali 1:50
Bogdan59 pisze:adłub zakupiłem w znanej wszystkim firmie i jestem z niego zadowolony.
A ja tej firmy nie znam, więc chyba nie taka znana. Aczkolwiek najważniejsze że jesteś zadowolony. Życzę powodzenia w budowie, mam nadzieję ze teraz się nie zniechęcisz. Widzisz bo trza było od razu w drewienku model robić, a nie plajstikami się bawisz
Pozdrawiam serdecznie Piotr
- Tomsonikkk
- Posty: 68
- Rejestracja: 22 lip 2011, 21:03
Re: Trawler rozpaczy, czyli Piraja w skali 1:50
Wybrałeś fajny Model , który do łatwych z pewnością nie należy ,a skoro i tak nie będzie łatwo to czemu by sobie nie utrudnić i nie zrobić rc
Nie trzeba dzisiaj podejmować decyzji , rozpocznij budowę od pokładów nadbudówek zrób trochę detali w między czasie wyrobi się w Tobie na pewno słuszna wizja jak ma Twój model wyglądać
Ja życzę wytrwałości i z pewnością będę śledził postępy budowy
z pozdrowieniami Tomek
Nie trzeba dzisiaj podejmować decyzji , rozpocznij budowę od pokładów nadbudówek zrób trochę detali w między czasie wyrobi się w Tobie na pewno słuszna wizja jak ma Twój model wyglądać
Ja życzę wytrwałości i z pewnością będę śledził postępy budowy
z pozdrowieniami Tomek
- Tomasz_D
- Posty: 558
- Rejestracja: 04 gru 2010, 21:55
Re: Trawler rozpaczy, czyli Piraja w skali 1:50
Tak jak podaje Marine Traffic jednostka stacjonuje w Danii, szukaj kontaktów z rodakami za granicą a może ktoś obcyka Ci dokładnie łajbę.
-
rekmak
- Posty: 79
- Rejestracja: 21 lis 2011, 18:53
Re: Trawler rozpaczy, czyli Piraja w skali 1:50
Również namawiam na RC. Wysokie burty, różne zanurzenie, będzie ładnie wyglądał na wodzie. Dobrze będzie jak podasz dane modelu. Przynajmniej długość.Wielu o tym zapomina.
- Bogdan59
- Posty: 0
- Rejestracja: 20 lip 2014, 20:25
Re: Trawler rozpaczy, czyli Piraja w skali 1:50
Czytam Wasze posty i zaczynam myśleć o tym, że skoda było by zamknąć sobie drogę do tego, aby zrobić z tej jednostki model RC.
Myślę że z powodzeniem można pójść drogą, o której napisał Tomsonikkk, czyli rozpocząć budowę od pokładów, nadbudówek i detali, a decyzję czy będzie to RC, podjąć później.
Za radą Tomka, spróbuję nawiązać kontakt z kimś z Danii, może w ten sposób uda mi się zdobyć więcej fotek tego trawlera.
Model będzie miał następujące wymiary:
wysokość (od stępki po top): 426 mm
długość: 773 mm
szerokość: 200 mm
Myślę że z powodzeniem można pójść drogą, o której napisał Tomsonikkk, czyli rozpocząć budowę od pokładów, nadbudówek i detali, a decyzję czy będzie to RC, podjąć później.
Za radą Tomka, spróbuję nawiązać kontakt z kimś z Danii, może w ten sposób uda mi się zdobyć więcej fotek tego trawlera.
Model będzie miał następujące wymiary:
wysokość (od stępki po top): 426 mm
długość: 773 mm
szerokość: 200 mm
Pozdrawiam Wszystkich
Bogdan
Bogdan
- paniol2005
- Posty: 96
- Rejestracja: 04 gru 2010, 21:56
Re: Trawler rozpaczy, czyli Piraja w skali 1:50
RC albo ban
Nie masz się co zastanawiać , model aż się prosi na wodę.
Koledzy zawsze Ci pomogą - ja też , choć praktycznie jak każdy tutaj się uczę .
Pobaw się nadbudówkami i drobnicą , a w miedzyczasie kompletuj sobie wyposażenie - wiem że koszty pójdą w górę ale wrażenia bezcenne .
Powodzenia.
Nie masz się co zastanawiać , model aż się prosi na wodę.
Koledzy zawsze Ci pomogą - ja też , choć praktycznie jak każdy tutaj się uczę .
Pobaw się nadbudówkami i drobnicą , a w miedzyczasie kompletuj sobie wyposażenie - wiem że koszty pójdą w górę ale wrażenia bezcenne .
Powodzenia.
Pozdrwiam - Tomek
- Bogdan59
- Posty: 0
- Rejestracja: 20 lip 2014, 20:25
Re: Trawler rozpaczy, czyli Piraja w skali 1:50
Dzisiaj zacząłem "wycinanki" w kadłubie. Powoli, niewiele tego zrobiłem, ale na dzisiaj wystarczy.
Rośnie apetyt na RC
Rośnie apetyt na RC
Pozdrawiam Wszystkich
Bogdan
Bogdan
- rychenko
- Posty: 681
- Rejestracja: 04 gru 2010, 21:56
Re: Trawler rozpaczy, czyli Piraja w skali 1:50
Witam
Bogdan nie do końca jest tak jak koledzy tu wcześniej pisali , pewne ustalenia musisz podjąć już teraz bo niestety później to będzie już za późno aby Model mógł być RC.
Nie można w pewnej fazie budowy pominąć pewnych rzeczy, nie można zakryć pokładem kadłub jeśli nie zdecyduje się już teraz czy ma to być Model pływający czy nie, jak zakryjesz wnętrze pokładem to jak zamocujesz później chociażby dławice do steru i cały mechanizm co będzie poruszał sterem musisz mieć albo do tego dojście, albo zrobić to i zakryć pokładem , to samo się tyczy laminowania dławicy wału napędowego, jak sobie wyobrażasz zrobienie tego jak Model będzie pomalowany i z zakrytym pokładem ? robiąc Model statyczny nie musimy zawracać sobie głowy dobrym dostępem do wnętrza kadłuba ale przy modelu RC dobre „dojście” jest nieodzowne aby muc zamontować silnik , odbiornik , regulator obrotów, akumulator, balast i co tam jeszcze sobie wymyślimy dlatego robiąc Model pod RC planujemy aby było jak najbardziej możliwe dojście do wnętrza kadłuba .
Bogdan nie do końca jest tak jak koledzy tu wcześniej pisali , pewne ustalenia musisz podjąć już teraz bo niestety później to będzie już za późno aby Model mógł być RC.
Nie można w pewnej fazie budowy pominąć pewnych rzeczy, nie można zakryć pokładem kadłub jeśli nie zdecyduje się już teraz czy ma to być Model pływający czy nie, jak zakryjesz wnętrze pokładem to jak zamocujesz później chociażby dławice do steru i cały mechanizm co będzie poruszał sterem musisz mieć albo do tego dojście, albo zrobić to i zakryć pokładem , to samo się tyczy laminowania dławicy wału napędowego, jak sobie wyobrażasz zrobienie tego jak Model będzie pomalowany i z zakrytym pokładem ? robiąc Model statyczny nie musimy zawracać sobie głowy dobrym dostępem do wnętrza kadłuba ale przy modelu RC dobre „dojście” jest nieodzowne aby muc zamontować silnik , odbiornik , regulator obrotów, akumulator, balast i co tam jeszcze sobie wymyślimy dlatego robiąc Model pod RC planujemy aby było jak najbardziej możliwe dojście do wnętrza kadłuba .
Pozdrawiam Ryszard
- Bogdan59
- Posty: 0
- Rejestracja: 20 lip 2014, 20:25
Re: Trawler rozpaczy, czyli Piraja w skali 1:50
Witam,
dzięki Rysiu za obszerne wyjaśnienia.
Jeżeli dobrze zrozumiałem to ma być tak:
zalaminować dławicę steru i wału
zamontować półki na których będą umieszczone wszystkie urządzenia
zamontować wszystko, łącznie z balastem i wtedy przeprowadzić próbę na wodzie (samego kadłuba)
Dopiero wtedy można montować pokłady i resztę.
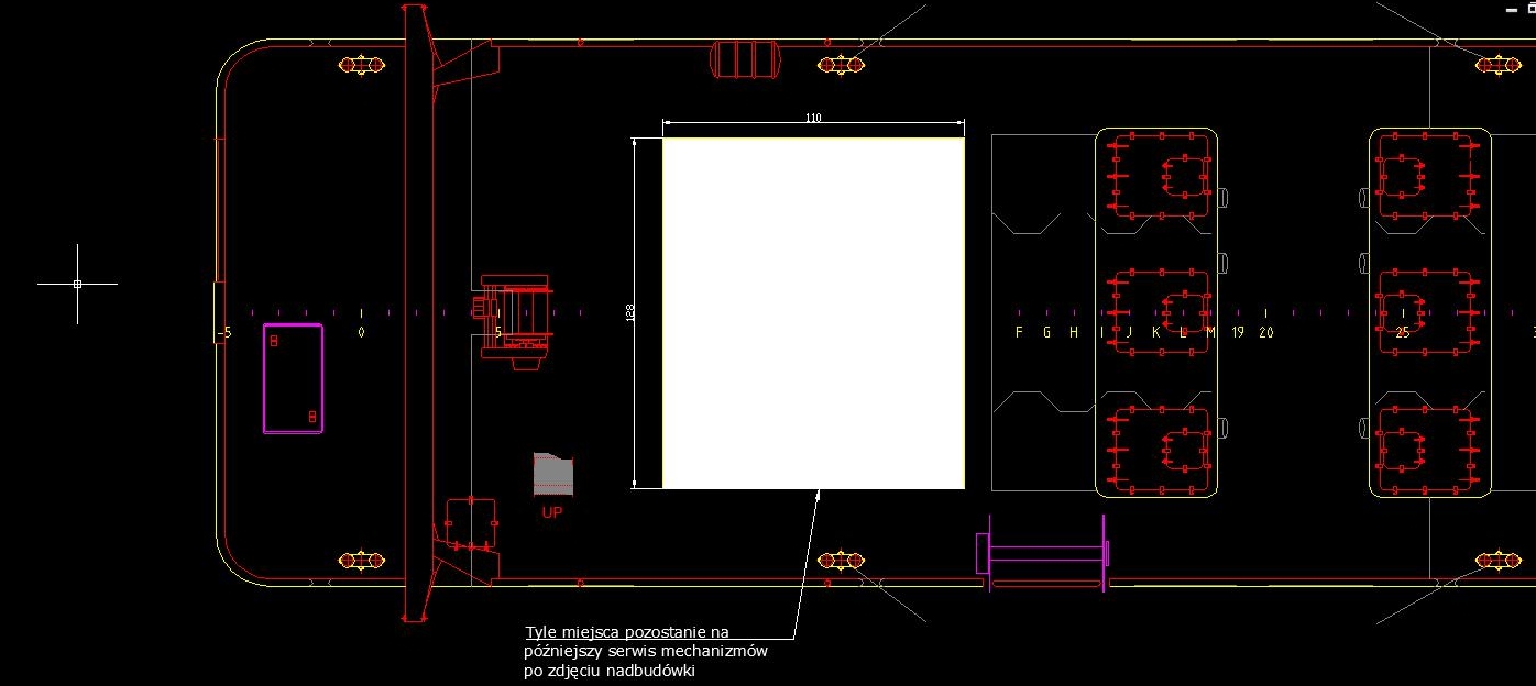
Rozrysowałem to na planie modelu
dzięki Rysiu za obszerne wyjaśnienia.
Jeżeli dobrze zrozumiałem to ma być tak:
zalaminować dławicę steru i wału
zamontować półki na których będą umieszczone wszystkie urządzenia
zamontować wszystko, łącznie z balastem i wtedy przeprowadzić próbę na wodzie (samego kadłuba)
Dopiero wtedy można montować pokłady i resztę.
Rozrysowałem to na planie modelu
Pozdrawiam Wszystkich
Bogdan
Bogdan