Napęd azymutalny

Czyli rozmowy o wszystkim i niczym, techniki modelarskie i warsztat modelarski
Awatar użytkownika
Romanov
Posty: 209
Rejestracja: 04 gru 2010, 21:56

Napęd azymutalny

Post autor: Romanov »

Witam
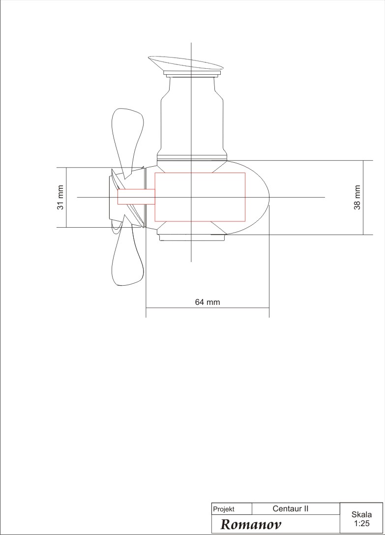
W związku z licznymi dyskusjami na SB na temat napędu azymutalnego na przykładzie holownika Centaur II
chciałbym przenieść dyskusje na forum bezpośrednio aby nasze rozważania i doświadczenia były dla innych użytkowników dostępna.

Wykonanie napędu azymutalnego na pewno nie jest łatwe ani proste. Ale nie jest niewykonalne.
W sprzedaży są gotowe napędy ale cena powala z nóg. Przy odrobinie chęci i wspólnym podejściu mam nadzieję że wypracujemy skuteczny napęd ale i nie drogi. W sieci jest już sporo informacji co i jak można zrobić. Tutaj podaję przykład.
Ja osobiście zastanawiałem się nad pominięciem przekładni kątowej która powoduje spory hałas oraz spore opory, a w miejsce przekładni umieścić silnik elektryczny. Jedynym problemem jest dopasowanie wielkością silnika i jakieś przekładni. Poniżej zamieszczam rysunek z wymiarami napędu Centaura II.

Zapraszam do dyskusji :)

Roman Kraska

edit: na rysunku czerwonym kolorem zaznaczyłem przypuszczalny silnik.
Załączniki
naped.jpg
DKM "Wodnik" www.rcmodel.com.pl
Awatar użytkownika
paniol2005
Posty: 96
Rejestracja: 04 gru 2010, 21:56

Re: Napęd azymutalny

Post autor: paniol2005 »

Trochę sprofanowałem Twój rysunek Romanie.
Ale do rzeczy , zastosowałbym pierścienie i szczotki by przenieść zasilanie silnika .
Wiem , że są przewody które wytrzymują katorgi zginania , skręcania itp - ale takie rozwiązanie pozwala na bezproblemowe operowanie pędnikami o 360 st.
Załączniki
naped.jpg
Pozdrwiam - Tomek
Awatar użytkownika
BALROG
Posty: 0
Rejestracja: 21 mar 2013, 12:05

Re: Napęd azymutalny

Post autor: BALROG »

naped.jpg
naped.jpg (35.62 KiB) Przejrzano 11623 razy


Na czerwono zaznaczyłem osie napędowe

ciemnozielone to przekładnie

niebiesko łożyska ślizgowe ( bezawaryjność nawet po zalaniu )

Fioletowo zaznaczona oś gondoli która jest rurką w której obraca się wał napędowy przenoszący napęd z silnika do przekładni kontowej a za jej pośrednictwem na wał śruby

eliminujemy tu takie czynniki
1.nie trzeba stosować elastycznych kabli bo silnik jest nieruchomo
2.silnik jest ponad wodą i niema ryzyka rozszczelnienia
3. nawet po zalaniu gondoli napęd będzie działał bez zarzutów
4. masa miejsca na redukcję obrotów silnika
Awatar użytkownika
BALROG
Posty: 0
Rejestracja: 21 mar 2013, 12:05

Re: Napęd azymutalny

Post autor: BALROG »

Przekładnie dobrze by było jakby były skośne

są dokładne i mają ograniczone luzy oraz hałasu mniej generują

tutaj przekładnia 3:1 średnica większej zębatki to 35mm ale można by w razie co do 32 stoczyć
P1220086.JPG


a to całe moje znalezisko ze złomowca są oczywiście nowiutkie

P1220087.JPG
Awatar użytkownika
Cezar65
Posty: 116
Rejestracja: 04 gru 2010, 21:56

Re: Napęd azymutalny

Post autor: Cezar65 »

Hmmm... . Średnica śruby napędowej w tym modelu to widzę że wynosi prawie 90mm , a to już problem.Potrzeba będzie mocy aby to sprawnie pracowało,obroty jakie by były potrzebne do sprawnej pracy śruby szacuję na jakieś +-1800 Rpm .Romanow masz racje duża przekładnia zębata nie wchodzi w rachubę z powodów które podałeś. Ale zawsze można do niej wrócić..... . Tylko silnik elektryczny szczotkowy . Tak patrzę na wymiary głowicy napędowej na Twoim rysunku... tam prawie udało by się wcisnąć 480 tkę . Tylko jeszcze żeby szło tam wcisnąć jakąś małą przekładnię zębatą . Napęd bezpośredni z wału silnika - biorąc pod uwagę podana przeze mnie średnicę śruby napędowej ( chyba się nie mylę) , nie jest możliwy.Osobnym tematem była by kwestia ew. uszczelnienia tego zespołu napędowego.Chociaż na którymś z forów wyczytałem że zawodnicy wyczynowi docierali silniki szczotkowe całe zanurzone w wodzie , wszak woda też redukuje tarcie... ale przekładnia zębata to by chyba za długo nie wytrzymała.
http://budowa-modelu-atlas-ll.blog.onet.pl
Awatar użytkownika
rychenko
Posty: 681
Rejestracja: 04 gru 2010, 21:56

Re: Napęd azymutalny

Post autor: rychenko »

Witam
Widzę chłopaki ze zaczyna was fantazja ponosić a może to tak świąteczne obżarstwo na was podziałało , wiadomo papier wszystko przyjmie i wszystko można na nim narysować ale przełożyć to z papieru na konkretna już rzecz nie jest takie proste , fajnie się mówi a tu łożysko a tu oś napędowa osadzona w łożyskach a łożyska w gondoli , a zębatki ukośne zamocować na wałach napędowych i dalej ble ble ble , jak już wcześniej mówiłem do wykonania takiego napędu potrzeba frezarki , tokarki i sporych umiejętności , większość nie ma porządnego imadła w domu a co dopiero wspomniane urządzenia, nie rozumiem dlaczego za wszelką cenę chcecie udowodnić ze można zrobić coś czego i tak żaden z was daje głowę nigdy nie zrobi , przeglądając Internet można zobaczyć 1 (jedną) relacje gdzie jest pokazane jak ktoś wykonał takowy napęd w pozostałych relacjach z budowy modeli które maja taki napęd były wykorzystane gotowe napędy , zrobienie porządnej śruby to już jest spore wyzwanie wiec o czym Wy tu dyskusje prowadzicie ? Pewnie ze taki napęd jest do zrobienia ale nie u przeciętnego „Kowalskiego „ w domu a jeśli zacznie się zlecać wykonanie poszczególnych rzeczy komuś to żebyście się nie zdziwili jak wyjdzie powyżej tych 80 Euro za jakie można to kupić.
Pozdrawiam Ryszard
Awatar użytkownika
Cezar65
Posty: 116
Rejestracja: 04 gru 2010, 21:56

Re: Napęd azymutalny

Post autor: Cezar65 »

Przejrzałem tak trochę stronę tego niemieckiego modelarza,widać jaki ma z...fajny park maszynowy.Wynikało by że on robi takie napędy na zamówienie, tylko nie ma ceny .... . Nie sądzę aby to miało kosztować 80 Eur.- za sztukę. Cena tego może być znacznie wyższa.... .
http://budowa-modelu-atlas-ll.blog.onet.pl
Awatar użytkownika
rychenko
Posty: 681
Rejestracja: 04 gru 2010, 21:56

Re: Napęd azymutalny

Post autor: rychenko »

Pisząc 80 Euro miałem na mysli cos takiego:
http://www.cmc-versand.de/Graupner/Scho ... VhttzffmSo

bo za 80 Euro mozna to kupić w innym sklepie, do tego dochodzi jeszcze silnik napędowy
Pozdrawiam Ryszard
Awatar użytkownika
futaba
Posty: 120
Rejestracja: 04 gru 2010, 21:56
Lokalizacja: {"name":"","desc":"","lat":"","lng":""}
Kontakt:

Re: Napęd azymutalny

Post autor: futaba »

Moim zdaniem kolega rychenko trochę przesadza. Da się zbudować sprawnie działający napęd azymutalny i nie trzeba do tego obrabiarek CNC, procesorów i oscyloskopów jak na zamieszczonej stronie niemieckich modelarzy. Swoją drogą, to co oni zademonstrowali, to dobry przykład maksymalnego przekombinowania. Wystarczy przyzwoita tokarka do metalu i trochę pomyślunku. Fakt, że koszt naszego napędu może przekroczyć przytaczane 80 Euro, ale za to napęd będzie redukcyjny, czyli wyglądem całkowicie pasujący do naszej jednostki, a nie dopasowany na siłę sklepowy, poza tym bezcenna będzie nasza satysfakcja z jego zbudowania.
Osobiście odpuścił bym wersję z silnikiem w "bule" bo przy dostępnej przestrzeni i średnicy napędzanej śruby takie rozwiązanie wygeneruje kilka problemów:
a) uszczelnienie - silniki elektryczne nie przepadają za wilgocią ponieważ są zbudowane w dużej części ze stali mocno rdzewnej i nawet jej odrobina szybko zacznie "zabijać" silnik;
b) doprowadzenie prądu, jeśli napęd faktycznie miałby się obracać bez żadnych ograniczeń o 360 stopni dowolną ilość obrotów; jeśli np. ograniczymy obrót do "359 stopni", to nie wpłynie to znacząco na manewrowość jednostki a wyeliminuje ten problem;
c) odprowadzenie ciepła od silnika - paradoksalnie będzie to spory problem, mimo że wokoło będzie pod dostatkiem chłodnej wody; mały silnik->duża śruba->duże obciążenie->dużo ciepła; podobne problemy występują w niektórych klasach modeli ślizgów, np. w moim miniECO standard wirnik silnika klasy 400 po 6 minutach biegu osiąga temperaturę ponad 60 stopni, mimo że obudowa silnika jest cały czas opływana wodą i to z dość dużą wydajnością, nie muszę chyba dodawać, że trwałość szczotek, komutatora, uzwojenia i magnesów w takiej temperaturze można liczyć w minutach;
d) bardzo mała i precyzyjna przekładnia - raczej trudno będzie dopasować coś sklepowego, więc pojawia się spory problem z wykonaniem odpowiednich kółek zębatych, te od zegarków raczej się nie nadadzą :mrgreen:
Jestem za tym co zaproponował balrog, choć i tu będą problemy, ale moim zdaniem dużo łatwiejsze technologicznie do przezwyciężenia:
a) napęd śruby, czyli odpowiednie kółka zębate – takie, które pokazał balrog były by idealne, a jak dodatkowo zaleje się je w „bule” olejem, to żadnego jazgotu na pewno nie będzie, no i jak widać, można takie zdobyć, w samym kadłubie można już zrezygnować z kółek kątowych i umieścić silnik pionowo, a przekładnię zrobić np. na pasku zębatym, takie małe kółka i krótkie paski można kupić
b) napęd samego obracania napędu (trochę maślano :D ) można również wykonać przekładnią z paskiem zębatym, a jako siłownika użyć prostej windy, takiej jak wykorzystywane w modelach żaglowych do wybierania szotów
Ja właśnie taką metodą zrealizowałbym napęd azymutalny, zresztą mam w planach podobną jednostkę ale musi poczekać na swoją kolej.
Ostatnio zmieniony 01 kwie 2013, 13:19 przez futaba, łącznie zmieniany 1 raz.
Pozdrawiam
Grzegorz Jermołaj
Pływające i latające RC.
Awatar użytkownika
jerry_bee
Posty: 922
Rejestracja: 04 gru 2010, 21:55

Re: Napęd azymutalny

Post autor: jerry_bee »

futaba pisze:...poza tym bezecna będzie nasza satysfakcja z jego zbudowania...

tak czułem, modelarstwo ma w sobie coś z perwersji... dlatego zajmują się nim tak Zacne Osobistości :P
--------------------------
pozdrawiam, jerry_bee
ODPOWIEDZ